Villa Carpi
 
 Carpi, Itàlia
Disseny per un concurs privat d'una reforma amb un habitatge existent, el projecte soluciona les necessitats d'una família contemporània, creant espais de coworking, co-living i co-leisure per a la parella i els seus dos fills adults.
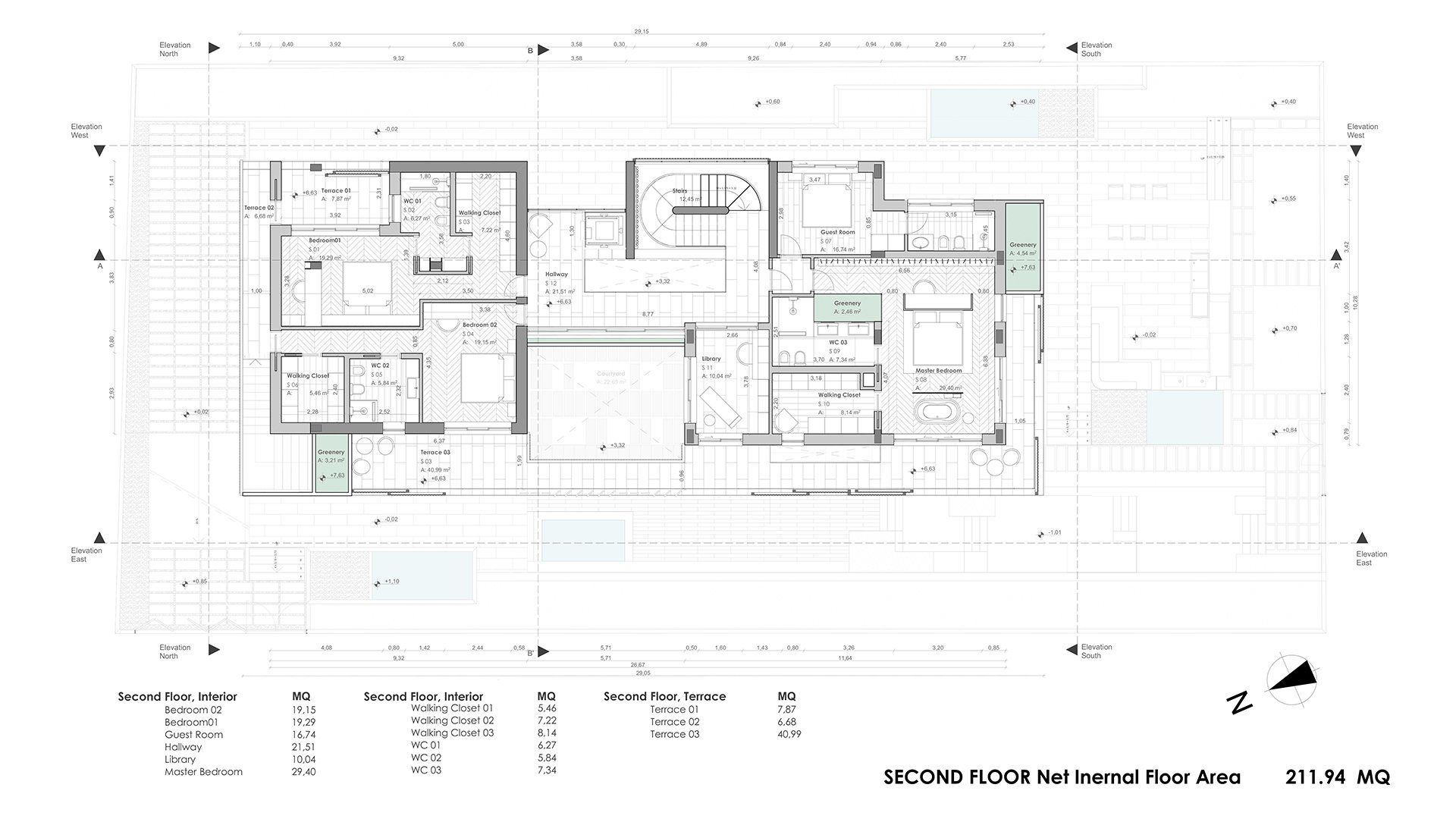
La remodelació de la vila de tres plantes va implicar una renovació completa per a crear un espai de vida funcional i còmode per als pares i dos fills adults. El disseny de la casa es va configurar per a brindar a cada membre de la família el seu propi espai privat en el segon pis, mentre que el primer pis consta d'una espaiosa sala d'estar de planta oberta amb una cuina moderna, un menjador i una còmoda sala d'estar. La planta baixa es va convertir en un espai funcional d'oficines.
La sala d'estar està dissenyada amb una estètica moderna i contemporània, amb grans finestrals, una xemeneia i una còmoda zona de descans. Les recambres estan situades en el segon pis, cadascuna amb el seu bany privat, walk-in closet i balcó. Els dormitoris estan dissenyats amb un ambient còmode i acollidor amb sòl de parquet i elements de fusta en les parets. L'exterior de la vila també es va actualitzar, presentant un nou jardí amb una cuina a l'aire lliure i comoditats, que inclouen una pèrgola i un menjador. La cuina a l'aire lliure està equipada amb una graella, una aigüera i un refrigerador per a vins, perfecte per a entretenir als convidats. L'exterior està enjardinat amb una varietat de plantes i arbres mediterranis, creant un ambient tranquil i relaxant.
Equip: Iulia Miron, Chiara Gallozzi
 
  
  
 
 
  
  
  
  
  
  
  
  
  
  
  
  
  
  
  
  
  
  
  
  
  
  
  
  
  
  
  
  
  
  
  
 