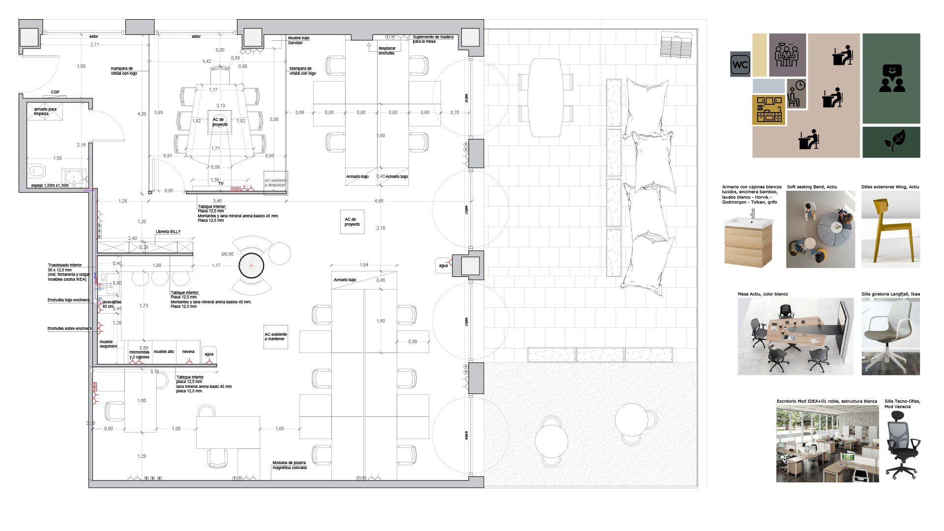
Triggle Office
 
 Palma, Spain
Office refurbishment, where an open workspace is integrated with a kitchen and relax area for workers.
On the outside terrace there is also a work area and a relax area.
Team: Mercedes Vera, Iulia Miron, Lluis Juan Segura
 
  
  
 
 
  
  
  
  
  
  
  
  
  
 



